Modernes Wohnen mit Weitblick: 3½ Zimmer Wohnung mit 140.3m² Wohlfühlfläche
Erleben Sie exklusives Wohnen in Ihrer grosszügigen 3½-Zimmer-Wohnung – stilvoll, komfortabel und mit viel Liebe zum Detail gestaltet.
Geniessen Sie die Morgensonne und endlose Blicke über die ganze Linthebene bis hin zu den Glarner Bergen. Barrierefreiheit ist dank geräumigem Personenlift und durchgängiger Schwellenlosigkeit des mit hochwertigen Materialien ausgestatteten Zuhauses garnaniert. Eine Wohnung, die modernen Wohnansprüchen voll und ganz entspricht.

Das barrierefreie Bad mit begehbarer Dusche und Sitzbank, separatem Heizkreis für angenehm temperierte Füsse sowie eigener Waschmaschine und Tumbler erhöht den Alltagskomfort spürbar.
Zusätzlich stehen Parkplätze zum Kauf bereit.

Ein besonderes Highlight ist die 52 m² grosse Begegnungszone im im Attikageschoss: direkte Sicht in die Linthebene und auf die Glarneralpen. Auch der mietbare Eventraum im hinteren Teil des Hauses bietet sich ideal für gesellschaftliche Momente und angenehmes Zusammensein an.
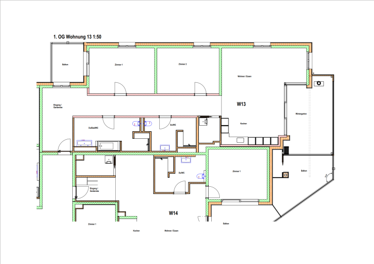
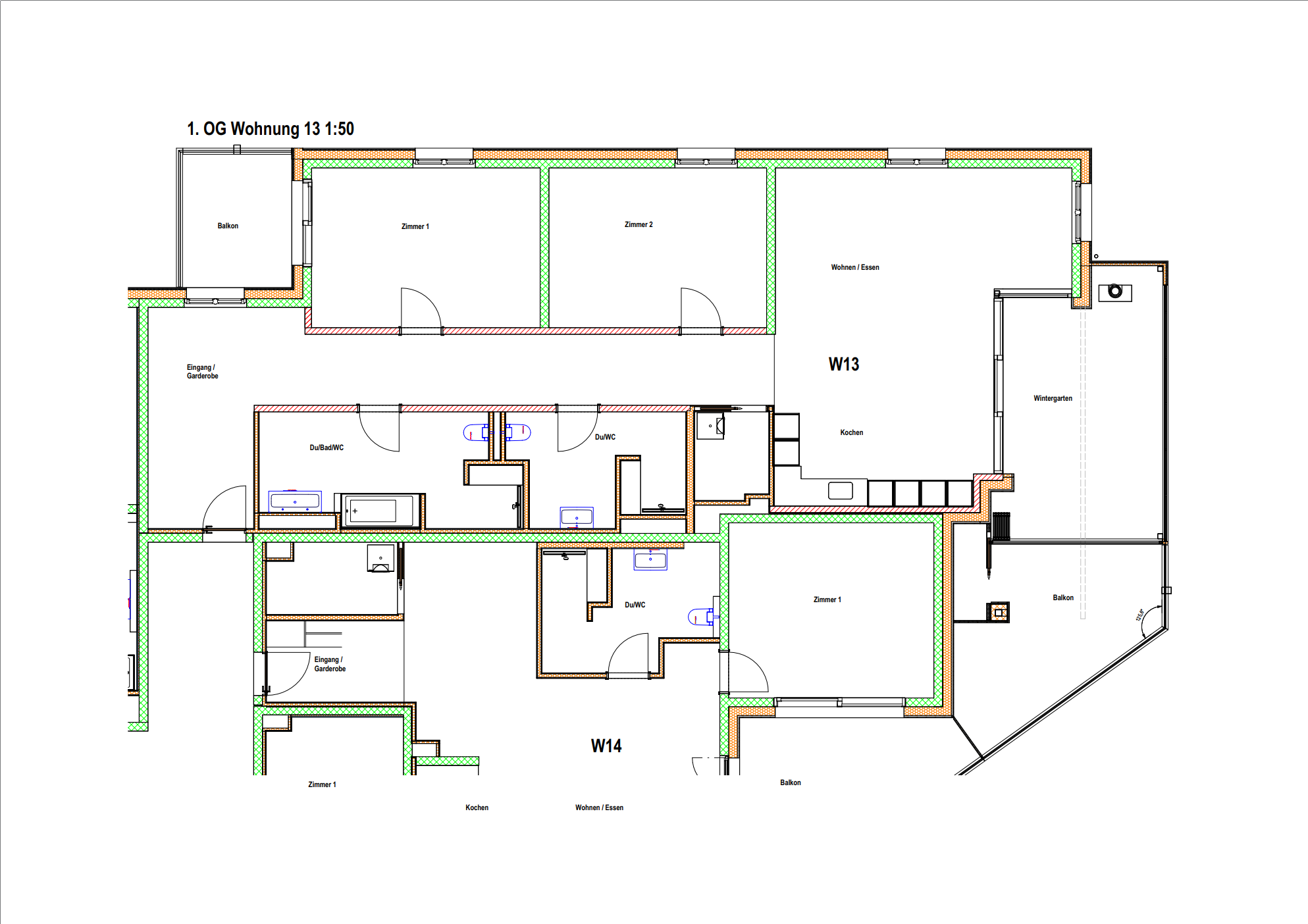
Wohnfläche der 3½ Zimmer Wohnungen
Total Nettowohnfläche 140.3 m² & unbeheizter Wintergarten 21.5 m² & Balkon 16.9 m² & Zimmerbalkon 7.6 m²
Aufgeteilt in:
| Wohn- Küche | 44.0 m² |
| Zimmer 1 | 18.8 m² |
| Zimmer 2 | 18.0 m² |
| Dusche-Bad-WC | 13.8 m² |
| Dusche-WC | 9.3 m² |
| Gang - Garderobe | 31.8 m² |
| Reduit | 3.3 m² |
| Nettowohnfläche | 140.3 m² |
| + unbeheizter Wintergarten | 21.5 m² |
| + Balkon | 16.9 m² |
| + Zimmerbalkon | 7.6 m² |
Ihr stilvoller Wohntraum mit Zukunftswert
Entdecken Sie Ihren perfekten Wohntraum in unseren exklusiven 3½-Zimmer-Wohnungen! Diese einladenden Wohnungen befinden sich im 1. und 2. Obergeschoss und bieten Ihnen ein unvergleichliches Wohnerlebnis. Mit dieser Wohnung erhalten Sie nicht nur ein stilvolles Zuhause, sondern auch eine Investition in Ihre Zukunft. Erfüllen Sie sich Ihren Wohntraum und sichern Sie sich Ihre eigene Oase der Gemütlichkeit!
Ihr neues Zuhause wartet bereits auf Sie.
Haben Sie Fragen oder wünschen Sie weitere Unterlagen? Nehmen Sie einfach Kontakt mit uns auf – wir beraten Sie persönlich, schnell und unkompliziert per Formular, E-Mail oder telefonisch unter +41 79 816 65 34.
Bei Interesse am Wohnungskauf steht Ihnen zudem unser Partner NewProp kompetent zur Seite. Das erfahrene Team begleitet Sie individuell und unverbindlich von der ersten Anfrage bis zum Vertragsabschluss.
3½ Zimmer Wohnung à 140.3m²
Aussicht Ihrer neuen Wohnung



